Rodinný dom na predaj 85m2, Čata
93 990 €
Cena za: Celkom
Základne informácie:
Kategória:
Rodinný dom
Typ operácie:
Predaj
Stav nehnuteľnosti:
Kompletná rekonštrukcia
ID inzerátu:
178629
Úžitková plocha:
85 m2
Zastavaná plocha:
129
m2
Plocha pozemku:
1478
m2
Popis nehnuteľnosti:
Ponúkame na predaj dom v obci Čata, ktorý spája pokojné vidiecke prostredie s moderným štandardom bývania. Nehnuteľnosť sa nachádza na slnečnom, rovinatom pozemku s celkovou výmerou 1 478 m2 (približné rozmery 125 m x 12 m), ktorý poskytuje priestor pre záhradu, relaxáciu.
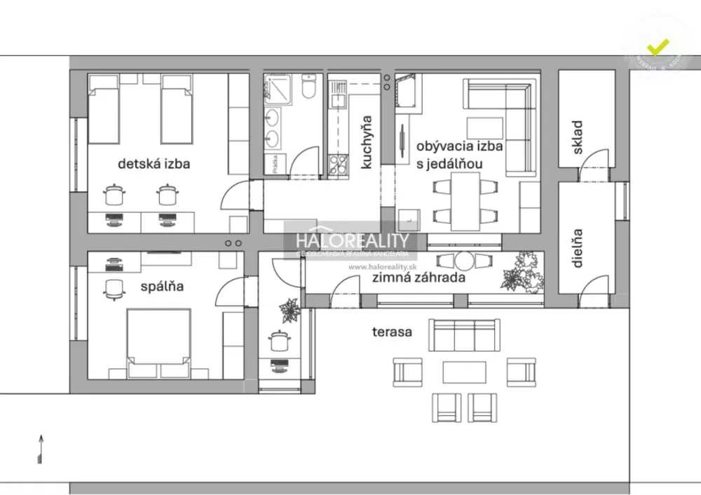
Úžitková plocha domu je 85 m2, čo predstavuje efektívne riešený obytný priestor bez nutnosti ďalších úprav.
DISPOZÍCIA:
Interiér je funkčne rozdelený so zameraním na maximálne využitie svetla a plochy.
Zo vstupnej chodby sú prístupné všetky hlavné časti domu: kuchyňa, kúpeľňa, samostatné WC a jedna z izieb.
Kuchyňa je otvorená a prepojená s obývacou časťou.
Z obývacej izby sa vchádza do druhej izby, ktorá disponuje samostatným vchodom z exteriéru. Tento prvok umožňuje využiť miestnosť ako domácu pracovňu, hosťovskú izbu alebo priestor pre člena rodiny vyžadujúceho vyššiu mieru súkromia.
STAV NEHNUTEĽNOSTI:
V roku 2022 prešiel objekt takmer kompletnou rekonštrukciou.
V rámci prác boli vymenené všetky rozvody (elektroinštalácia, vodoinštalácia), položené nové podlahy, realizované stierky, osadené nové okná a sanita. Interiér je ladený do svetlých tónov a je vo výbornom technickom stave.
Fasáda je pripravená na finálnu povrchovú úpravu podľa výberu nového majiteľa.
Vykurovanie je v súčasnosti riešené krbovými kachľami na tuhé palivo. V prípade potreby je možné systém doplniť alebo nahradiť elektrickým či plynovým vykurovaním.
INŽINIERSKE SIETE:
Dom je napojený na všetky dôležité siete: elektrinu, plyn, verejný vodovod a kanalizáciu. Na pozemku sa nachádza aj vlastná studňa ako alternatívny zdroj vody.
VÝHODY:
Kompletná vnútorná rekonštrukcia: Možnosť okamžitého nasťahovania.
Flexibilita: Izba so samostatným vchodom vhodná na podnikanie alebo návštevy.
Pozemok: Veľká výmera ponúka široké možnosti využitia.
Infraštruktúra: Napojenie na všetky inžinierske siete vrátane kanalizácie.
Dokončenie podľa seba: Možnosť zvoliť si finálny vzhľad fasády.
LOKALITA:
Obec Čata je tichá lokalita vhodná na trvalé bývanie aj rekreáciu.
Vzdialenosti do okolitých miest:
Levice: 35 km
Štúrovo: 26 km
Želiezovce: 25 km
NÁZOR MAKLÉRA:
Tento dom v Čate vnímam ako nehnuteľnosť s obrovským charakterom a pridanou hodnotou, ktorú na prvý pohľad nemusí vidieť každý. To najťažšie – teda kompletná technická obnova interiéru a rozvodov – je už hotové. Nový majiteľ sa tak vyhne špinavým búracím prácam a môže sa sústrediť na to príjemnejšie: na estetiku a bývanie.
Do galérie sme pre vás doplnili profesionálne vizualizácie, ktoré ukazujú, ako sa dá s plochou 55 m2 pracovať ešte efektívnejšie. Chceli sme vám ukázať, že aj na menšej ploche sa dá vytvoriť moderný, dizajnový priestor, ktorý pôsobí luxusne a vzdušne.
Čerešničkou na torte je pozemok s rozlohou takmer 15 árov. V tejto cene ide o výnimočný benefit. Vizualizácie exteriéru vám pomôžu predstaviť si, ako môže dom vyzerať s novou fasádou a terasou, ktorá prepojí interiér so záhradou. Ak hľadáte štartovacie bývanie, únik na víkendy alebo priestor, kde môžete spojiť prácu so životom na vidieku, tento dom je vďaka svojej pripravenosti a našim návrhom dispozície jednou z najzaujímavejších ponúk v regióne.
V prípade záujmu o obhliadku alebo ďalšie technické informácie ma neváhajte kontaktovať. Energetická trieda G.
Bližšie informácie Vám radi poskytneme na telefónnom čísle 0904 942 871 alebo na zuzanaagova@haloreality.sk. ID ponuky: LV-72325
Cena za nehnuteľnosť je KONEČNÁ, vrátane provízie, právneho servisu zabezpečeného advokátom, poradenstva, základného správneho poplatku na katastri a hypotekárnych služieb (viac na našej webovej stránke).
U NÁS MÁTE ISTOTU: --------------------------------------------------------
- pre vašu bezpečnosť sme členom ZDRUŽENIA REALITNÝCH KANCELÁRIÍ SLOVENSKA - ZRKS
- prvotriedny servis a služby po celom Slovensku, dôvera TISÍCOK PREDÁVAJÚCICH
- nestrannosť pri prevode Vašej nehnuteľnosti
- poradíme Vám ako najlepšie predať/kúpiť nehnuteľnosť
- profesionálne obhliadky s pravidelne preškoľovanými profesionálnymi maklérmi
- vo vybraných lokalitách pri exkluzívnych zmluvách robíme aj videoobhliadky a pôdorys nehnuteľnosti
- inzerujeme na viac ako 200 portáloch
- zmluvy garantované právnikom, dohľad nad prevodom nehnuteľnosti podľa zákona
- bezplatné hypotekárne služby našich partnerov na mieru a s najlepšími podmienkami
- na našom webe nájdete už viac ako 3000 referencií našich spokojných klientov
- naše služby neustále zdokonaľujeme / zaujíma nás váš názor
-----------------------------------------------------------------------------
Nehnuteľnosť predávate jeden/dvakrát za život, nechajte to na profesionálov v realitách, ktorým DÔVERUJÚ TISÍCE PREDÁVAJÚCICH PO CELOM SLOVENSKU - u nás nájdete 2000 aktuálnych ponúk.
Poloha nehnuteľnosti:
Mapa:

Ing. arch. Zuzana Agová
0904 942 ... Zobraziť
zuzanaagov ... Zobraziť