Reštauračné priestory na prenájom 140m2, Žilina
1 500 €
Cena za: mesiac
Základne informácie:
Kategória:
Reštauračné priestory
Typ operácie:
Prenajom
Stav nehnuteľnosti:
Po rekonštrukcii
ID inzerátu:
138745
Úžitková plocha:
140 m2
Zastavaná plocha:
140
m2
Plocha pozemku:
140
m2
Doplnkové informácie:
Okná:
Plastové
Popis nehnuteľnosti:
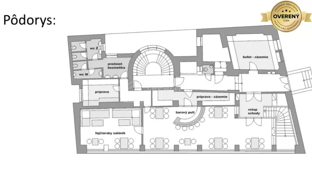
1. Reality Rent ponúka do prenájmu zariadenú kaviareň 140 m2 v historickom centre mesta Žiliny. Kaviareň sa nachádza sa na prízemí s vchodom z ulice. Priestor sa prenajíma kompletne zariadený. Parkovanie je možné parkovacej zóne II. v okolí domu. Pri podpise nájomnej zmluvy sa platí dvojmesačný depozit plus prvý nájom. V prípade záujmu volajte na 0918/632975
Poloha nehnuteľnosti:
Mapa:

1. REALITY RENT, s.r.o.
0918 632 ... Zobraziť
vandlik@re ... Zobraziť