Rekreačný pozemok na predaj 162m2, Jarabá
55 000 €
Cena za: celkom
Cena za m2 : Infinity €/m2
Základne informácie:
Kategória:
Rekreačný pozemok
Typ operácie:
Predaj
Stav nehnuteľnosti:
Pôvodný stav
ID inzerátu:
157556
Plocha pozemku:
162
m2
Popis nehnuteľnosti:
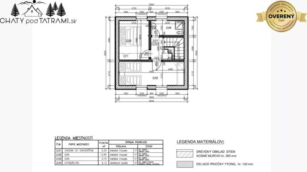
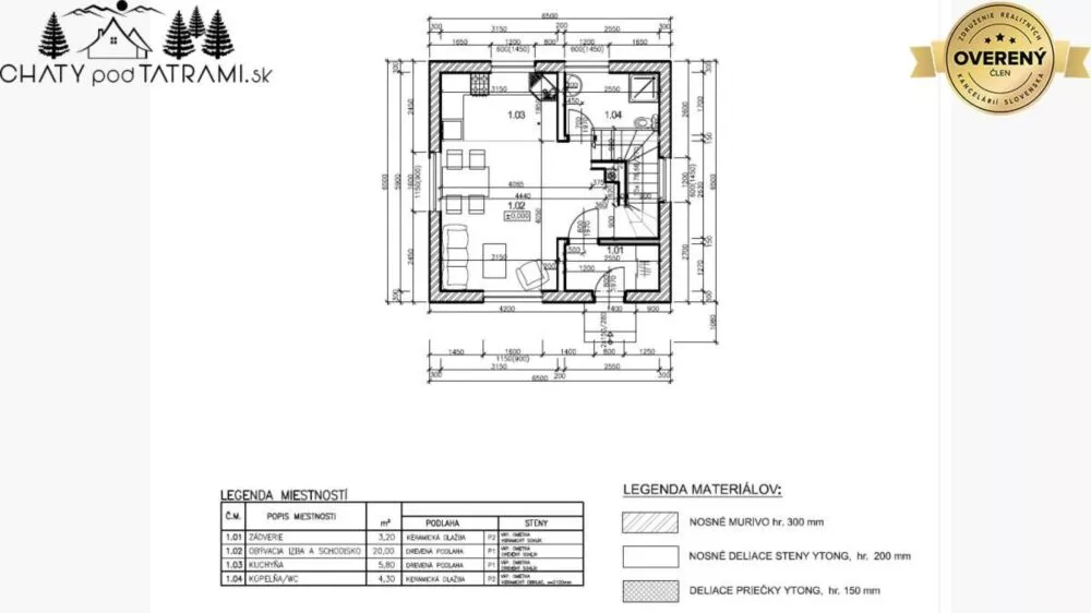
Pozemok sa nachádza v útulnej dedinke pod Čertovicou, v Jarabej. Je situovaný v okrajovej časti chatovej osady, 1km vzdialený od rušnej hlavnej cesty, v nadmorskej výške 1000m n.m. Je prístupný po udržiavanej spevnenej ceste vo vlastníctve obce. Pozemok sa nachádza v lesnom prostredí neďaleko horského potôčika. Celková výmera je 162 m2, na liste vlastníctva je vedený ako TTP. Na hranici pozemku je novovybudovaná elektrická domová prípojka a je tu plánovaná vŕtaná studňa. Na pozemku je vydané stavebné povolenie na výstavbu 3i rekreačnej chaty 6,5 x 6,5 m o zastavanej ploche 42,3 m2. Dedinka Jarabá je vzdialená 6km od lyžiarskeho strediska a obľúbených bežkárskych tratí Čertovica. 8km je vzdialené lyžiarske stredisko Mýto pod Ďumbierom (kopeczabavy.sk) a v okruhu 20km sú ďalšie lyžiarske strediská Tále (tale.sk), či Chopok-Juh (jasna.sk) pre náročných lyžiarov. V okolí Jarabej je prekrásna príroda s možnosťami hubárčenia, turistiky a cykloturistiky (horehronie.sk) Podrobné informácie a ďalšie ponuky nájdete na CHATYpodTATRAMI.sk aj na našich sociálnych sieťach. Časti textu a fotografie je možné použiť iba so súhlasom autora © 2025 - Chaty pod Tatrami s.r.o.
Poloha nehnuteľnosti:
Mapa:

ALEX BREZNO, s.r.o.
0905 604 ... Zobraziť
info@chaty ... Zobraziť