Obchodné priestory na prenájom 250m2, Žilina
5 200 €
Cena za: mesiac
Základne informácie:
Kategória:
Obchodné priestory
Typ operácie:
Prenajom
Stav nehnuteľnosti:
Holopriestor
ID inzerátu:
177423
Úžitková plocha:
250 m2
Plocha pozemku:
250
m2
Doplnkové informácie:
Okná:
Hliníkové
Popis nehnuteľnosti:
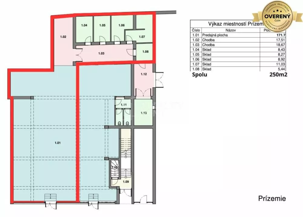
1. Reality Rent ponúka veľký obchodný priestor 250 m2 v úplnom centre Žiliny. Veľký potenciál tohto priestoru je lokalita, nachádzajúca sa v najfrekventovanejšej časti mesta Žilina. Obchodný priestor je v stave holopriestor, s potenciálom na prerobenie podľa predstáv budúceho nájomcu. Priestor má vlastný elektromer, podružné meranie plynu a vody. V priestore sú k dispozícií aj 4 malé sklady a v zadnej časti priestoru je vchod pre zásobovanie. Fotografie ku priestoru sú ilustračné, takto by priestor mohol vyzerať po prerobení po dohode s majiteľom. V prípade záujmu o obhliadku ma kontaktujte na telefónom čísle 0918 632975.
Poloha nehnuteľnosti:
Mapa:

1. REALITY RENT, s.r.o.
0918 632 ... Zobraziť
vandlik@re ... Zobraziť