Iný objekt na bývanie na predaj 499m2, Štefánikova trieda, Nitra
Cena:
Dohodou
Základne informácie:
Kategória:
Iný objekt na bývanie
Typ operácie:
Predaj
ID inzerátu:
126280
Úžitková plocha:
499 m2
Zastavaná plocha:
530
m2
Plocha pozemku:
430
m2
Popis nehnuteľnosti:
Ponúkame na predaj polyfunkčnú budovu v strede pešej zóny, kompletná rekonštrukcia, dvojpodlažná s podkrovím, čiastočne podpivničená. Podlahová plocha cca 530 m2.
- vek budovy je cca 100 rokov
- kompletná rekonštrukcia fasády, strechy aj interiéru
- 2.podlažná s podkrovím, čiastočne podpivničená (suterén)
- stavebný materiál pálená tehla
- hliníkové výklady, plastové okná, strešné okná VELUX, podlahy v spoločných priestoroch aj
v interiéroch sú z keramickej dlažby.
- stredom budovy je priechod do pasáže s rôznymi prevádzkami (spojová pasáž smer na ul. Fraňa Mojtu)
- reklamný panel na budove (reklamné plochy sa prenajímajú)
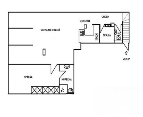
POPIS podlaží:
Suterén: výmera cca 76 m2, 4 miestnosti, hlavná časť prístavby z roku 1997, kúrenie, elektrina.
1.NP :
Predajňa č.1 – výmera cca 100 m2 , priamy vstup z pešej zóny
Predajňa č.2 – výmera cca 47 m2, priamy vstup z pešej zóny
Predajňa č. 3 – výmera cca 35 m2, vstup z priechodného dvora smer Fr.Mojtu
2.NP:
3 izbový veľkometrážny byt - výmera cca 115 m2
Garsónka - výmere cca 26 m2
Kancelársky priestor - výmera cca 46 m2
Podkrovie:
Veľkometrážny 2 izbový byt, výmera cca 150 m2
Všetky byty v budove sú kompletne zariadené a vybavené spotrebičmi.
ODPORÚČAME VIDIEŤ. Viac info osobne
Poloha nehnuteľnosti:
Mapa:

Realitná agentúra Dolcan, s.r.o.
0911 469 ... Zobraziť
info@reali ... Zobraziť