2 izbový byt na predaj 48m2, Trnavská cesta, Bratislava - Ružinov
203 630 €
Cena za: celkom
Cena za m2 : 4200 €/m2
Základne informácie:
Kategória:
2 izbový byt
Typ operácie:
Predaj
ID inzerátu:
159213
Úžitková plocha:
48 m2
Plocha pozemku:
48
m2
Doplnkové informácie:
Okná:
Plastové
Popis nehnuteľnosti:
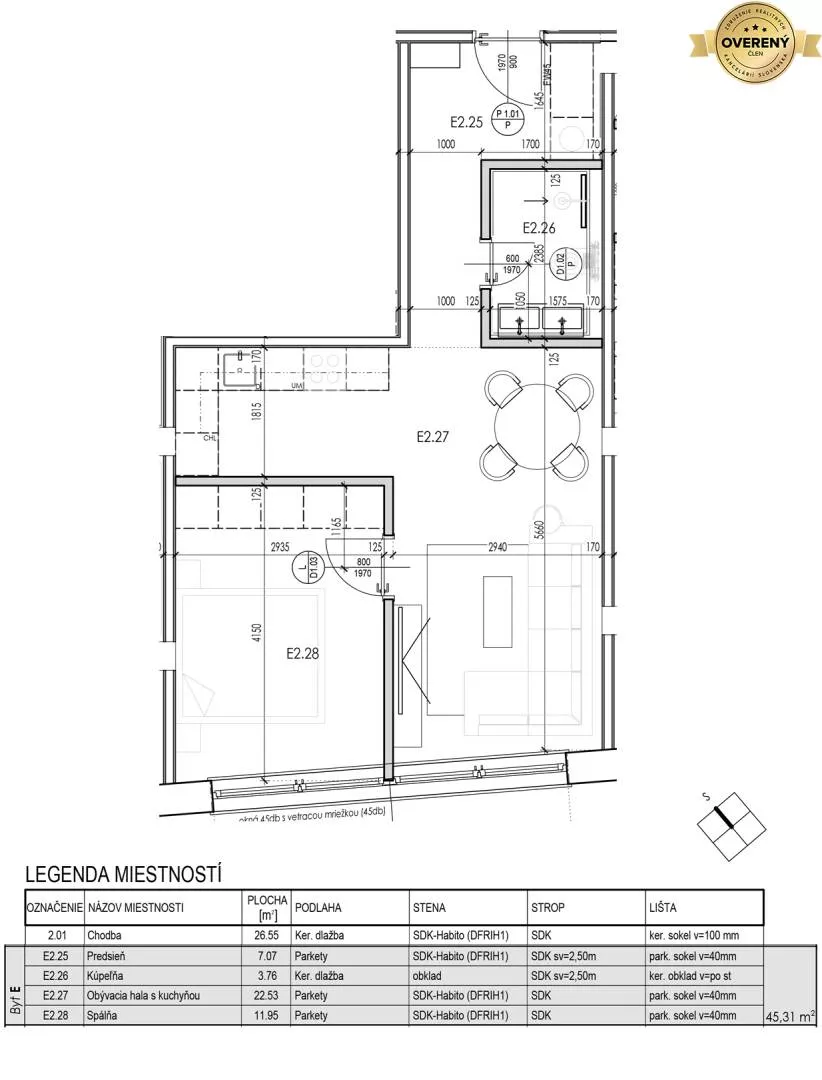
Realitná kancelária PROM REAL ponúka na predaj viacero nových bytov v lukratívnej lokalite na Trnavskej centre pri klientskom centre. 2 izbový byt v štádiu holobytu v dokončenom projekte BYTY NA SKOK. Byt sa nachádza v polyfunkčnom dome v Bratislava - Ružinov. VÝHODY + super lokalita so všetkými službami + nové v holobyte s možnosťou dokončenia do štandardu + možnosť dokúpenia parkovania, alebo garáže a pivníc + Rekuperácia a predprípravy na klimatizáciu BYTY NA SKOK V projekte sú aj ďalšie 2 a 3 izbové byty. Na bytoch je možný odpočet DPH. Výhodou je možnosť dokončenia do štandardu! BYTOVÝ DOM: - 3x výťah - Centrálne kúrenie - možnosť dokúpenia garážového státia za 20.000,00 € (s DPH), alebo samostatnej murovanej kobky od 4.000,00 EUR (s DPH) BYT Celková plocha bytu 44,91 m2 Chodba 3,57 m2 Predsieň 7,07 m2 Obývacia Hala s kuchyňou 22,53 m2 Spálňa 11,95 m2 Kúpeľňa 3,76 m2 Lokalita: Kúsok od centra. V bezprostrednej blízkosti je Yeme plnochutné potraviny, Kaufland, široká škála reštaurácií a rôznych služieb, školy, škôlky, zástavky MHD, jazero Kuchajda, obchodné domy .. --- V uvedenej cene zabezpečíme kompletný realitný a právny servis. Najvýhodnejšie HYPOTEKÁRNE financovanie zabezpečí špecialista BEZPLATNE! *** Páči sa Vám naša prezentácia? Aj Vám radi pomôžeme s predajom, prenájmom Vašej nehnuteľnosti. AKCIA! VIRTUÁLNE OBHLIADKY pre všetky naše ponuky. Finálna cena sa môže líšiť podľa záujmu o nehnuteľnosť. © Text a fotografie sú autorským dielom a majetkom realitnej kancelárie Prom Real
Poloha nehnuteľnosti:
Mapa:

Ing. Michal Kolenčík
0919 040 ... Zobraziť
kolencik@p ... Zobraziť