2 izbový byt na predaj 64m2, Galvaniho, Bratislava - Ružinov
334 000 €
Cena za: celkom
Cena za m2 : 5219 €/m2
Základne informácie:
Kategória:
2 izbový byt
Typ operácie:
Predaj
ID inzerátu:
147030
Úžitková plocha:
64 m2
Doplnkové informácie:
Výtah:
Áno
Balkón/Loggia:
Balkón
Popis nehnuteľnosti:
XEMAR (milan.mlcal@xemar.sk alebo 0915 870 350), ponúka na predaj 2 izbovú novostavbu v meste Bratislava s parkovaním.
Nehnuteľnosť sa nachádza v obľúbenej Bratislavskej mestskej časti Ružinov.
Byt sa predáva kompletne zariadený.
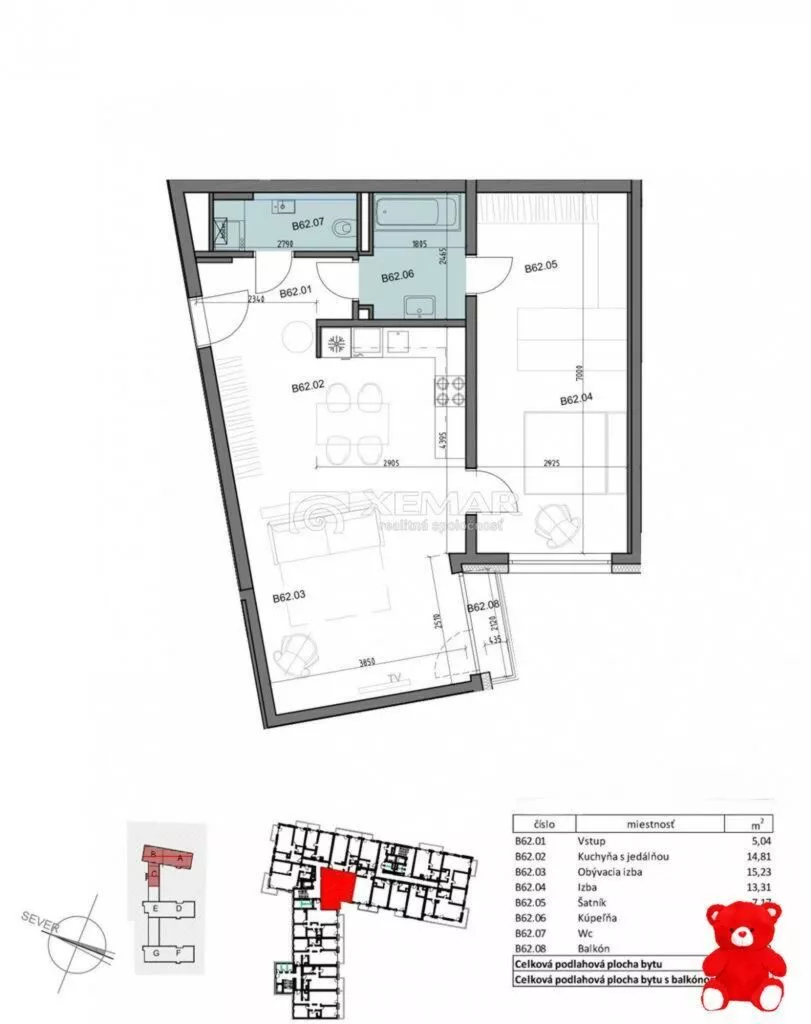
Nehnuteľnosť pozostáva:
vstup
kuchyňa prepojená s jedálňou a s obývacou miestnosťou (výstup na balkón)
kuchynská linka na mieru, vstavané spotrebiče
izba
šatník
kúpeľňa
samostatné WC
balkón
samostatné kúrenie
výmera 64,24 m2 spolu s balkónom
5. poschodie
ulica Galvaniho
Vrátane ceny je zahrnuté:
1 x pivničná kobka
1 x vnútorný parking
1 x vonkajšie státie
Lokalita:
V blízkom okolí nájdete materské, základné aj stredné školy, miesta na šport aj relax, kaviarne, reštaurácie aj nákupné centrá.
Určite oceníte blízkosť zástavok MHD, rýchly prístup na obchvat, alebo na letisko. Kompletná občianska vybavenosť.
Poloha nehnuteľnosti:
Mapa:

JUDr. Milan Mlčal,
0915 870 ... Zobraziť
milan.mlca ... Zobraziť